Продаж 2к квартири ЖК Сімейний Comfort 2 (№ 213-285-693)
Ціна: 62 000 $

Немирівське шосе, 95 корпус 1, Вінниця, Вінницька, Передмістя, Вінницькі Хутори
Характеристики
| Ціна: | 62 000 $ |
|---|---|
| № об'єкта: | 213-285-693 |
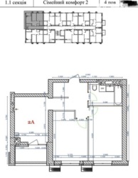
| Кімнат: | 2 розд |
| Поверх: | 4 / 10 ліфт |
| Площа: | 57.3 / - / - м2 |
| Санвузол: | 1 сумісний |
| Балкон: | балкон |
| Додатково: | новобудова |
Опис
Чудова двох кімнатна квартира
- Індивідуальне перепланування
- В ціну включено монтаж електрики(2000$)
- Комфортний 4й поверх(вікна в двір)
- Індивідуальне газове опалення
- Панорамні вікна
- Можливий продаж з кладовкою біля квартири
- У будинку є підземний паркінг та бомбосховище
Будинок побудований, здача
у 2 кварталі 2026 року
За додатковою інформацією звертайтеся по телефону











