Продаж початкового будівництва (№ 22-439-800)
Ціна: 80 000 $

Адреса: вул.Монастирська, Вінниця, Вінницька, Передмістя, Вінницькі Хутори
Характеристики
| Ціна: | 80 000 $ |
|---|---|
| № об'єкта: | 22-439-800 |
| Тип: | будинок |
| Поверхів: | 1 |
| Спалень: | 3 |
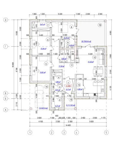
| Площа будинку: | 180 м2 |
| Ділянка: | 8,5 сот |
Опис
Будинок мрії на етапі будівництва.Тиха природа, асфальт до двору, комунікації вже в будинку! Будинок 180 м² на етапі коробки: одно поверховий, велике планування, ідеальна основа для втілення власного дизайну
- Ділянка 8.5 соток: рівна, правильної форми з місцем для саду, тераси, зони відпочинку
- Комунікації вже заведено в будинок:
- Скважина 109 м водотоннажність 2500 літрів на годину,ваша незалежність від міських водомереж
- Каналізація септик
- Електроенергія 11 кВт достатньо для будь-якої техніки чи опалення
- Асфальтований підїзд зручно в будь-яку погоду
- Зупинка громадського транспорту всього за кілька хвилин пішки
- Поруч ліс і ставок свіже повітря, місце для прогулянок і відпочинку
Будинок зводився для себе фундамент на совість, якісна кладка, продумане планування. Ви економите тисячі доларів і місяці часу, бо все найскладніше вже зроблено!













