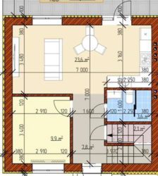
Продаж 2 поверхового таунхауса з ділянкою на 2 сотки, 95.1 кв. м, 4 кімнати, на вул. Ювілейна (№ 22-437-964)
Ціна: 57 000 $

Адреса: Ювілейна, Вінниця, Вінницька, Передмістя, Бохоники
Характеристики
| Ціна: | 57 000 $ |
|---|---|
| № об'єкта: | 22-437-964 |
| Тип: | таунхаус |
| Поверхів: | 2 |
| Спалень: | 4 |
| Площа будинку: | 95 м2 |
| Ділянка: | 2 сот |
Опис
Добротний та якісно збудований таунхаус, з гарними краєвидами в кількох кілометрах від урбанізованої Вінниці. Асфальтована дорога, комунікації



