Продаж 2 поверхового будинку з ділянкою на 12 соток, 145 кв. м, 4 кімнати, на вул. Кобзарська (№ 22-427-960)
Ціна: 80 000 $

Характеристики
Ціна: | 80 000 $ |
---|---|
№ об'єкта: | 22-427-960 |
Тип: | будинок |
Поверхів: | 2 |
Спалень: | 4 |
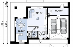
Площа будинку: | 145 м2 |
Ділянка: | 12 сот |
Адреса: Вінницька, Вінниця, Передмістя, Стрижавка, Кобзарська
Продам будинок, не добудований до кінця. Будувався для себе, все можна побачити на фото.