Продаж 2 поверхового таунхауса з ділянкою на 2 сотки, 135.6 кв. м, 4 кімнати (№ 22-426-862)
Ціна: 145 000 $

Характеристики
Ціна: | 145 000 $ |
---|---|
№ об'єкта: | 22-426-862 |
Тип: | таунхаус |
Поверхів: | 2 |
Спалень: | 4 |
Площа будинку: | 136 м2 |
Ділянка: | 2 сот |
Адреса: Вінницька, Вінниця, Ленінський, Барське Шосе, Гоголя
родається новий двоповерховий таунхаус 2024 року побудови площею 135, 6 м² з гаражем (20 м²), підвалом і горищем. Будинок введений в експлуатацію, земля у приватній власності.
Локація:
На краю Вінниці, тихий та доглянутий район.
Вулиця закрита шлагбаумом, асфальтований підїзд, приємні сусіди.
Поряд дитячий садок, магазини, відділення Нової пошти (вантажне і звичайне).
У декількох хвилинах Епіцентр, Метро, торговий центр з МакДональдз, автовокзал.
Зручна транспортна розвязка у бік Хмельницького та Житомира.
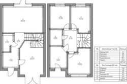
Планування та площі:
Ділянка: 172 м² (ширина 6, 9 м, глибина 25, 3 м).
Площа забудови: 85 м².
1 поверх: гараж, кухня-студія, ванна кімната.
2 поверх: 3 спальні, кабінет, ванна кімната.
Велике горище та підвал під гаражем.
Паркування:
Гараж (20 м²).
Паркомісце перед гаражем.
Додатково можна ставити авто перед ділянкою.
Комунікації та оснащення:
Газ, світло, централізована вода та каналізація.
Газове опалення (котел встановлений).
Тепла підлога на першому поверсі та у ванних кімнатах.
Радіатори на другому поверсі.
Камін з розводкою теплого повітря на другий поверх.
Система очистки води.
Встановлена сантехніка (крани, душові, інсталяції унітазів).
Варильна поверхня та витяжка.
Додаткові переваги:
Дизайн план(візуалізації та технічна документація).
Підготовлене місце під акваріум у кабінеті.
Передній та задній двір.
Тераса (готова, потрібно лише встановити).
Внутрішні сходи будуть змонтовані перед продажем (входять у вартість).