Продаж 2 поверхового таунхауса з ділянкою на 2 сотки, 117 кв. м, 3 кімнати, на вул. Пирогова 163 (№ 22-423-487)
Ціна: 125 000 $

Характеристики
Ціна: | 125 000 $ |
---|---|
№ об'єкта: | 22-423-487 |
Тип: | таунхаус |
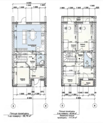
Поверхів: | 2 |
Спалень: | 3 |
Площа будинку: | 117 м2 |
Ділянка: | 2 сот |
Адреса: Вінницька, Вінниця, Ленінський, Пирогово, Пирогова, 163
Продається новий таунхаус 2 поверхи простору для життя та мрій
Площа оптимальна для комфортного життя.
Розташуваний у затишному районі Вінниці з хорошою доступністю, асфальтована дорога, поруч школа, громадський транспорт.
Стан без ремонту, чорнова гіпсова штукатурка. Ви можете втілити свої дизайнерські ідеї з нуля, без зайвих витрат на демонтаж чужих рішень.
Паркомісце біля будинку зручно та безпечно для авто.
Чому варто купити саме цей таунхаус?
Повноцінні 2 поверхи житлового простору
Раціональне планування без зайвих метрів
Можливість зробити ремонт на свій смак
Зручне розташування тиша, чисте повітря, при цьому вся інфраструктура поруч
Це не просто нерухомість. Це шанс створити дім, у якому буде затишно вам і вашій родині.
Телефонуйте, щоб домовитися про перегляд!